$1,150,000
1985 Olympic Valley Road #216 (2-216)
Olympic Valley, CA 96146
✓ STR Allowed — Permit Required
Placer County STR permit required. County-wide cap of 3,900 permits — new permits available until cap is reached.
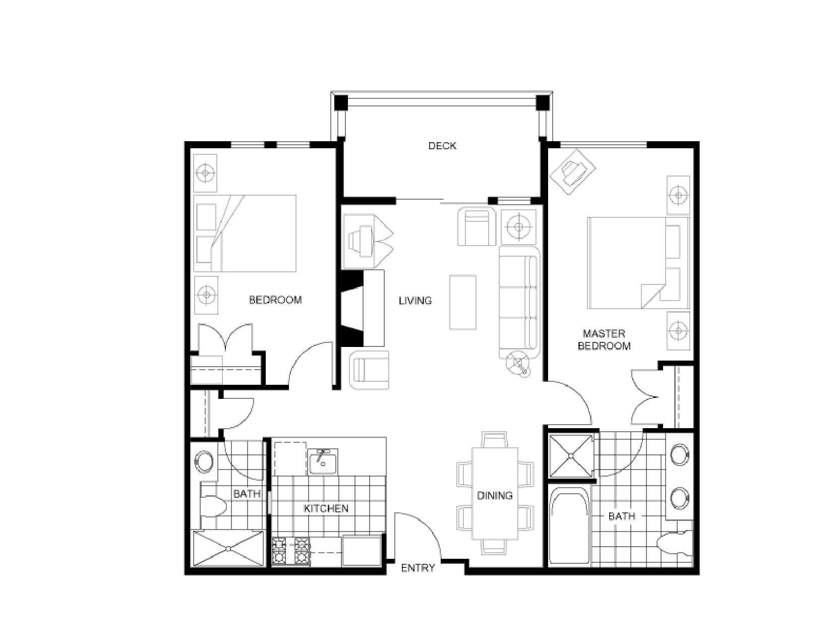
2 Beds
·
2.0 Baths
·
896 Sq Ft
Virtual Tour

About This Property

Best-priced Village 2-Bedroom is recently refreshed and Premier for Palisades Tahoe rental program earning higher rates and larger split. Boot up and grab your skis from the Village-level locker - it's only a few steps to the lifts. Village amenities include 8 hot tubs, 4 saunas, 3 fitness rooms, billiards, kids' room, media room, guest & owner ski lockers, bike storage, and underground parking. Dues include all utilities and insurance, except contents & liability policy. Ditch the red-light parade and start living slopeside this winter.

Listed by Suzanne Gale — COMPASS

Listing Details

Status Active
MLS # 20260108
Days on Market 54
Price/Sq Ft $1,283

Property History

Jan 23, 2026
Listed for sale
$1,150,000
Property Overview
Beds 2
Baths 2.0
Sq. Ft. 896
Stories 1
Year Built 2002
Property Type Residential
Style Mountain
Subdivision Olympic Valley
APN 096-650-013
Parking
Parking Features One
Financial
HOA Fee $2,246
HOA / Community https://sites.google.com/view/firstascentoa/home
📊

STR Investment Analysis

See projected rental revenue, occupancy rates, and investment scores.

STR Investment Analysis

Permitted Zone
STRUCTURAL SCORE Excellent
87
PROJECTED ANNUAL REVENUE
$142,500 ($118K – $167K range)
~$11,875 per month
Avg Nightly
$485
Occupancy
68%
Cap Rate
5.2%

Payment calculator

$0 per month
Principal & interest
$0
Property taxes
$0
HOA dues
$0
Home insurance
$0
Estimate only — wildfire zone rates vary. Contact a local broker for an accurate quote.
Down payment
20% ($230,000)
Home price
$1,150,000
Loan details
30-yr fixed, 6.5%
Request a Tour
Murat Gocmen
Murat Gocmen
Real Estate Agent
License #CA 02235314

Send a Message

Or call directly: 9166671444