2201 Scott Peak Place 49Alpine Meadows, CA 96146




Mortgage Calculator
Monthly Payment (Est.)
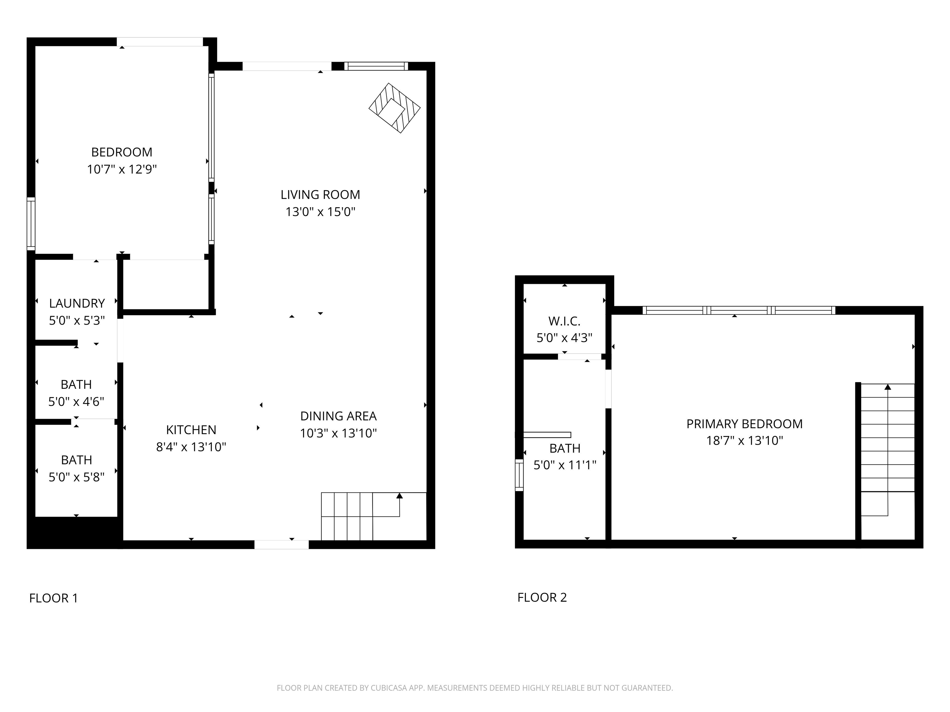
$2,509Major Price Improvement — Priced to Sell. Now offered at $550,000, this 2-bedroom, 2-bath condo is an excellent opportunity to own in Alpine Meadows at a compelling price point. Just in time for winter, recent snowfall enhances the appeal of this mountain retreat, ideal for immediate seasonal enjoyment. The functional floor plan offers flexibility for full-time living, a second home, or a mountain getaway. The property is being sold as-is, and the seller is highly motivated and ready to make a move, creating strong value for a buyer prepared to act quickly. Conveniently located with easy access to world-class skiing, year-round recreation, and the greater Tahoe area, this condo represents a rare opportunity in today’s market. Don’t miss this aggressively priced offering.
| 2 weeks ago | Listing updated with changes from the MLS® | |
| 2 weeks ago | Price changed to $550,000 | |
| a year ago | Listing first seen on site |
Listing information is provided by Participants of the Tahoe Sierra Board of REALTORS MLS. IDX information is provided exclusively for personal, non-commercial use, and may not be used for any purpose other than to identify prospective properties consumers may be interested in purchasing. Information is deemed reliable but not guaranteed. Copyright 2026, Tahoe Sierra Board of REALTORS MLS.
Data last updated at: 2026-01-07 06:35 PM UTC
Did you know? You can invite friends and family to your search. They can join your search, rate and discuss listings with you.